A second-year project.
Greenmix is a multi-unit residential project focusing on developing empathy for clients with a culturally unfamiliar background. The project scope included a two-storey loft for a couple from France, whose book collection and travel mementos were the only things brought with them to their new life in Canada. To create a sense of home in their recently-purchased loft, the concept then became the “Living Library.”




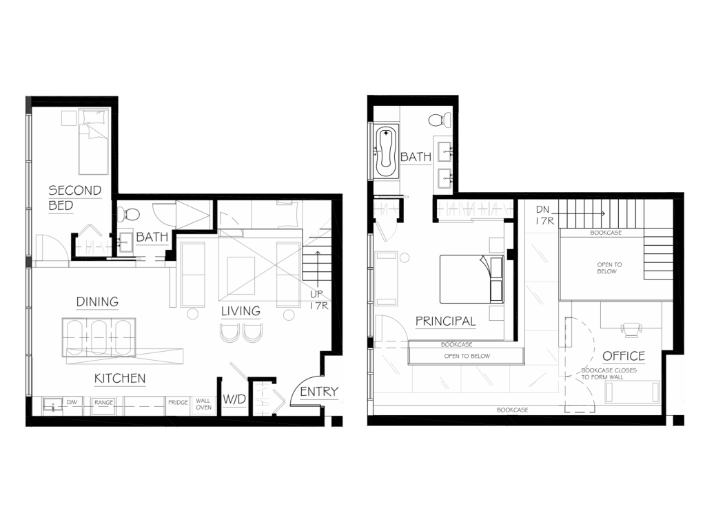
Final Space Plan
Through a multitude of storage solutions which display desired elements and hide away others, open sightlines, and affordances for reading throughout the space, the Living Library comes to be. Warm, layered lighting throughout the space illuminates the design decisions driven by the client’s desire for both fun and a nod to their French heritage. The bookshelves are installed using Japanese construction methods which allow for sustainable deconstruction in the future, and are set against a Neoclassical/Pop-Art background.

A section through the kitchen (first storey) and library display (second storey). The cabinet fronts form 3 work stations which can be tucked away when closed.


The kitchen was designed to close up when not in use; 24” panels on either side of 4’ sections slide away when the space is needed for tasks. A custom island allows for seating for 6 while also possessing the ability to close up when not in use for a clean look.


Section through the double height space, showing the office area above the living room. Notice the hidden seating under the stairs.

A custom nook under the stairs is hidden away behind false millwork and acts as a hideaway to curl up and read one of the many books on display.

Warm lighting on all of the custom millwork illuminates the space and highlights the client’s treasured book and travel memento collection. A work area above the double height living space uses glass railings for maximum visibility of the shelving.


Glass flooring along the main pathway on the second level allows for greater visual continuity throughout the space.

The perfect place to end the day.