A Second-Stage Women’s Shelter which aims to lessen the effects of PTSD after domestic violence through trauma-informed design and biomorphic form.

The Atwood infuses curved sub-architecture into a rectilinear plan, as research shows that curved forms relax the brain and subliminally increase positive associations with space. privacy is layered into the building through carefully placed translucent partitions as security, both physical and psychological, is of the utmost importance.




The Atwood is designed to mimic the properties of a cocoon; a layered, protective, community-focused home that supports women and their children through personal growth after trauma. Biophelia and biomorphic forms will define the space and highly conceptual nodes remind users of varying seasonal moments.
Programmatically, the Atwood needs to serve many different user groups. With 20 staff and 38 residents – 40% of which are children, areas for rest, fun, work, and bonding, are strategically integrated throughout. The Atwood spans over 4 floors and 18,000 square feet.



Ancillary spaces include a bike storage room and an expansive admin/intake area, both of which take advantage of the secondary entry point. Counselling spaces are rounded and face the indoor garden to encourage relaxation in an otherwise typically anxiety-inducing space.
In the subterranean corner of the building, a vibrant theatre room takes advantage of the only space without natural light. The room is playful and unserious, allowing teens to form bonds with one another, likewise affording space for family movie night. The pink velvet Wallcovering is a stark contrast to more paired back materiality in the rest of the building.


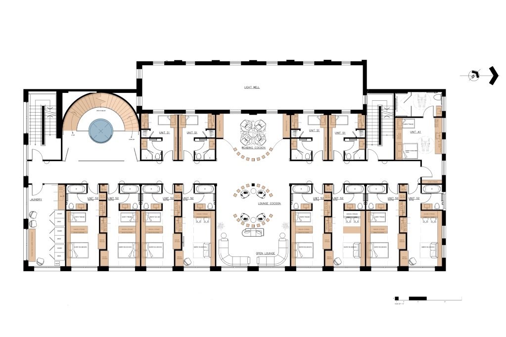
First Level – Social spaces are the heart of the Atwood, as research shows that finding community, especially with those who have been through similar life events, significantly lessens the occurrence of PTSD and maladaptive behaviour. There are lounges in open and closed areas, a large kitchen with communal dining, and a children’s play area. Circulation is open and varied to allow for choice in path based on sense of security and desire for interaction.
Private communal spaces, such as a breastfeeding room, library, and visually-protected kitchen are shared by all, but users are not expected to force interaction with others while enjoying them. A fitness and yoga studio encourage users to increase their endorphins and regain a sense of control over their bodies.



A Play Cocoon is wrapped in translucent screens and strategically placed within the sightlines of the kitchen, dining, and breastfeeding areas so mothers can feel at ease. The cocoon is woodland themed, and forms a space where children can feel at home.

The intimate Lounge Cocoon is meant to feel like a spring day with cherry blossoms forming a protective cover over the space and providing acoustical buffering. This highly-conceptual node in the space is rounded so no one is left out of group conversations.

The Second & Third levels are designed for dwelling, and are more predictably planned to make use of the existing column grid, while maximizing the amount of users.

A mix of single-bed, two-bed, and accessible units are aligned over the top two levels of the building. The dwelling levels are on the higher floors to increase the sense of safety and security while sleeping.

Flexible micro-suites (S2) aim to set the precedent that small spaces can be functional. In just 250sq.ft. this apartment can sleep either a single woman, or a women with children, also functioning as a lounge and dining area during the day.


Custom millwork slides on a track to create sleeping, eating, and relaxing zones. On one side – a closet, on the other – a dining table, and in the center – a pull out screen to create a closed off bedroom.





