
A second-year project.
This project called for the design of a multi-unit, mixed use building which improves the wellbeing of those who live there. After a deep dive – pun intended – into the benefits of water and its effects on human behaviour, this building quickly became a haven of layered water elements which calm the senses.

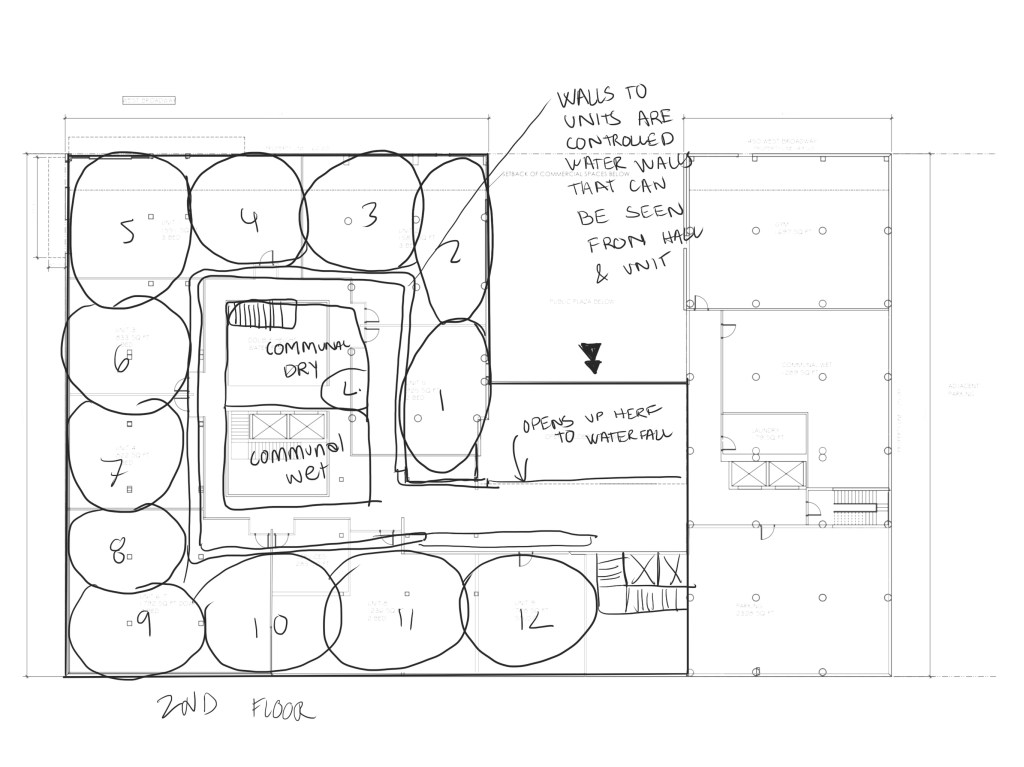
Anyone who knows me knows that I always say “space planning sets my soul on fire.” Planning a multi-storey building while maximizing space and including amenities was a puzzle I quite enjoyed solving. Here is a series of photos to showcase my process.


In keeping with the concept, the amenities include wet spaces, such as an indoor double-height waterfall, steam room, and aqua therapy pools. The presence (and sound) of water has a proven calming effect on the mind and grounds people in their surroundings.



The brief also entailed a presentation center with a mock-up suite to sell the new apartments to potential buyers; making use of foot traffic on Broadway was key to increasing exposure.

By carving out the corner of the building into a more organic shape, it primes the eye for what’s to come. A public plaza in the center of the two main arms of the building engages the community in an otherwise drab area of town.


Consideration of surrounding buildings in the downtown area affects natural light in the building. Apartments and commercial spaces below needed to be planned accordingly.




Mock-up suite hand drawn paraline; planning volumetrically cannot happen in 2D.


Final look of the mock-up suite bathroom.




The final material palette of the space is paired back, allowing layered lighting to warm up the space and let water features take center stage.
