2022 Staples Workplace Award Finalist.
A human-centric office that welcomes diverse abilities and improves employee wellness through evidence based strategies.

The Fine Print is an upscale cookbook store with its headquarters based in Vancouver, BC. Their office space needed to reflect the flat hierarchy and inclusive values of the company, as well as increase employee retention and keep sustainable practices in mind. Through active & equitable space planning, large communal amenities, and open sightlines, the office increases spontaneous collaboration and subtly boosts the wellness of its finest ingredient – its employees.

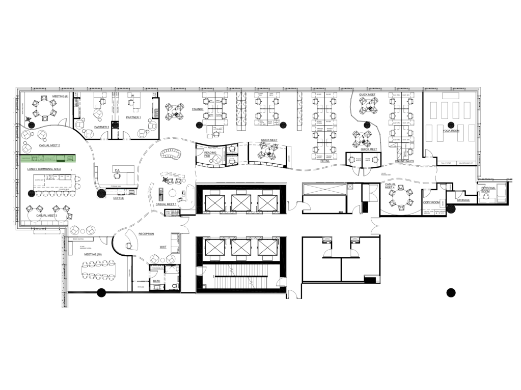
Office Space Plan – accommodating 28 employees across 5 departments. An emphasis on cross collaboration and quick meeting spaces allows for natural interaction, meaning time is saved in the work day.
Active design strategies – such as lessening the number of convenience areas, placing them in corners with ample daylight & views (making them desirable destinations), and moving functional rooms (such as the copier) farther away from workstations – promote more activity during the workday. Small design choices like these contribute to a healthier employee; leading to a decrease in sick days, lower insurance costs, and increased employee retention.

Universally Designed Kitchen Elevation

Honouring the organic form and colour in its retail stores, The Fine Print headquarters embraces sinuous curves and allows natural materials to anchor the space. The office features lighting tuned to the circadian rhythm which warms up areas that are often stark in a professional setting. Lighting in the entire office exceeds LEED ID &C Gold – Lighting Power Density standard (<1 watt/sq.ft.), totalling 0.92 watts/ sq.ft.

A sizeable island anchors the universally designed kitchen which is complete with two counter heights, pull down cabinet shelves, and an array of accessible storage options. All dining surfaces are set at 30” so as to not “other” those in a wheelchair.

All desks are placed perpendicular to north-facing windows; equitable access to daylight and views are key to employee health and wellness. Workstation furniture meets BIFMA 2022 safety & durability standards, is ergonomic, and allows for varying postures.

Strategic insertions of hue and abstract murals add a sense of play to the workplace, with colourful biophilia throughout. Artwork includes cookbook covers and photography found within the them to promote a sense of pride and connection to the company.

One common corridor connects either side of the office, this forces employees to pass each other and contributes to spontaneous collaboration; meeting zones are placed in key areas to promote quick and easy congregation. Ceiling plane is raised 12” in hallway to define the space and afford for up-lighting on a colourful mural.